Single Hatch Access Platform with Gangway

Our one hatch access systems and platform and gangway systems consist of single pedestal platform, gangway and staircase for access and optional fall prevention cage for your fall protection needs on top of single-dome tank / bulk trucks, tank cars and hopper cars.

NOTE: This product is currently not available for purchase online. Contact us for more detailed information about your application and requirements.

System Description

Our one hatch access systems consist of single pedestal platform, gangway and staircase for access and optional fall prevention cage for your fall protection needs on top of single-dome tank / bulk trucks, tank cars and hopper cars.

All platform and gangway systems come equipped with a single pedestal platform, access stairway and access equipment. A four-column support design is also available with integrated loading arm support.

NOTE: Our Access platforms and gangways are bundled together and parts are not sold individually. If you would like to order individual items, please call or email us.

Features & Benefits:

  • Custom designed to meet to meet operational requirements
  • Single or Double-Sided access
  • May be equipped with static, pivot, or  slide-track mounting
  • Various integration options with loading arms and pumping stations

Various access options include:

  • Self-leveling Stair gangways
  • Flat Ramp or Telescopic gangways
  • Pivot or Slide-Track mounting

Finishes

  • Painted Standard Grey Enamel / Safety Yellow
  • Hot Dipped Galvanized

**CAUTION WARNING** This is a fall protection system. The system must be used in strict conformance with the manufacturer’s instructions. Failure to do so may result in serious injury or death. You can download the system manuals from the ‘Downloads’ tab. You are also encouraged to contact us in case of any questions.

System Components

Single Hatch Access Platform with Gangway - Components The Access Platform & Gangway System includes:
(1) Access Platform
(1) Access Gangway
(1) Staircase & Pedestal
(1) Safety Enclosure (optional)
NOTES:Our Access platforms and gangways are bundled together and not sold individually. If you would like to order individual items, please call or email us.
This is a custom fabricated product and prior to fabrication, we will send you a drawing for your review and approval. Upon approval, we will proceed with fabrication.

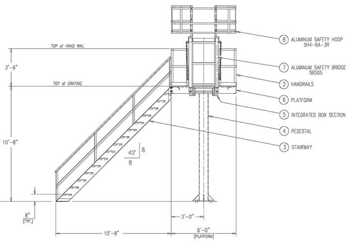
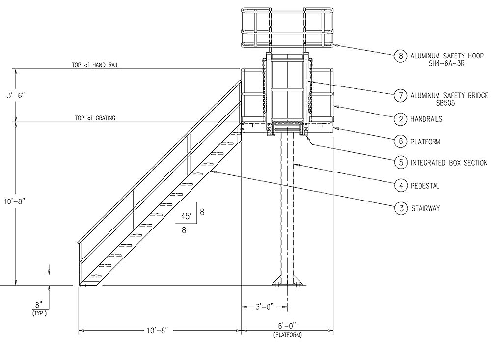
Hopper/Grain Railcar

Model No. System Package Wgt. (lbs)
BEN-R-PP1-15
Prime Painted Option
INCLUDES:

  • Prime Painted Platform (15’ 4”)
  • Aluminum Telescoping Ramp Gangway – 2′ W, 80.5″ L
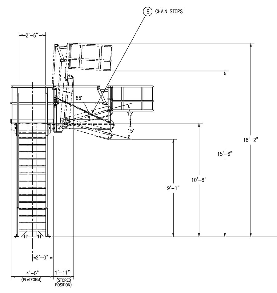
  • Adjustable Chain Stops (pair)
3,101
BEN-R-PP2-15
Prime Painted Option

(optional Safety Cage)
INCLUDES:

  • Prime Painted Platform (15’ 4”)
  • Aluminum Telescoping Ramp Gangway – 2′ W, 80.5″ L
  • Adjustable Chain Stops (pair)
  • Uncoated Aluminum Safety Cage (7′ L x 8′ W)
3,166
BEN-R-GAL1-15
Galvanized Option
INCLUDES:

  • Galvanized Steel Platform (15’ 4”)
  • Aluminum Telescoping Ramp Gangway – 2′ W, 80.5″ L
  • Adjustable Chain Stops (pair)
3,101
BEN-R-GAL2-15
Galvanized Option

(optional Safety Cage)
INCLUDES:

  • Galvanized Steel Platform (15’ 4”)
  • Aluminum Telescoping Ramp Gangway – 2′ W, 80.5″ L
  • Adjustable Chain Stops (pair)
  • Uncoated Aluminum Safety Cage (7′ L x 8′ W)
3,166

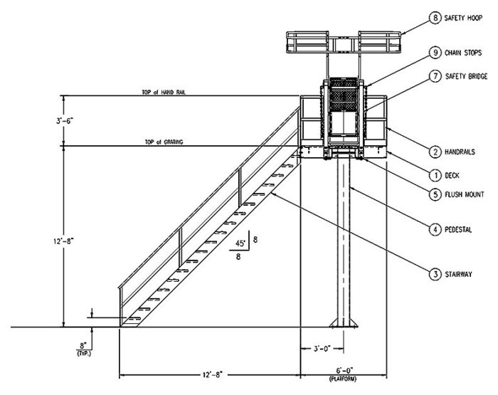
Tanker Railcar

Model No. System Package Wgt. (lbs)
BEN-R-PP1
Prime Painted Option
INCLUDES:

  • Prime Painted Platform (12’8”)
  • Aluminum Telescoping Ramp Gangway – 2′ W, 80.5″ L
  • Adjustable Chain Stops (pair)
2,901
BEN-R-PP2
Prime Painted Option

(optional Safety Cage)
INCLUDES:

  • Prime Painted Platform (12’8”)
  • Aluminum Telescoping Ramp Gangway – 2′ W, 80.5″ L
  • Adjustable Chain Stops (pair)
  • Uncoated Aluminum Safety Cage (7′ L x 8′ W)
2,966
BEN-R-GAL1
Galvanized Option
INCLUDES:

  • Galvanized Steel Platform (12’8”)
  • Aluminum Telescoping Ramp Gangway – 2′ W, 80.5″ L
  • Adjustable Chain Stops (pair)
2,901
BEN-R-GAL2
Galvanized Option

(optional Safety Cage)
INCLUDES:

  • Galvanized Steel Platform (12’8”)
  • Aluminum Telescoping Ramp Gangway – 2′ W, 80.5″ L
  • Adjustable Chain Stops (pair)
  • Uncoated Aluminum Safety Cage (7′ L x 8′ W)
2,966

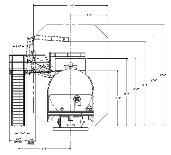
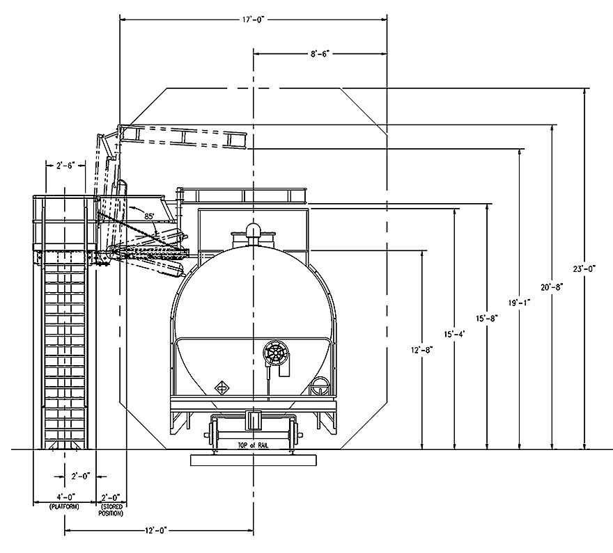
Quick Overview – Front & Side Views:

Access Platform & Gangway for Railcars - Side View Access Platform & Gangway for Railcars - Front View

Tanker Truck

Model No. System Package Wgt. (lbs)
BEN-T-PP1
Prime Painted Option
INCLUDES:

  • Prime Painted (4’ W x 6’ L x 10’ H)
  • Flat Ramp Gangway (Aluminum) – 2’ W, 68”
    2,859
BEN-T-PP2
Prime Painted Option

(optional Safety Cage)
INCLUDES:

  • Prime Painted (4’ W x 6’ L x 10’ H)
  • Flat Ramp Gangway (Aluminum) – 2’ W, 68”
  • 3-rail Uncoated Aluminum Safety Cage (4’ L x 6’ W)
    2,922
BEN-T-GAL1
Galvanized Option
INCLUDES:

  • Galvanized Steel (4’ W x 6’ L x 10’ H)
  • Flat Ramp Gangway (Aluminum) – 2’ W, 68”
    2,859
BEN-T-GAL2
Galvanized Option

(optional Safety Cage)
INCLUDES:

  • Galvanized Steel (4’ W x 6’ L x 10’ H)
  • Flat Ramp Gangway (Aluminum) – 2’ W, 68”
  • 3-rail Uncoated Aluminum Safety Cage (4’ L x 6’ W)
    2,922

Quick Overview – Front & Side Views:

Access Platform & Gangway for Trucks - Side View Access Platform & Gangway for Trucks - Front View

Downloads

REQUEST QUOTE

By providing some basic information, we can provide you with a custom quotation or more product information.
If you prefer to speak with a fall protection expert just call us at (951) 465-7386 x 303 or email us at webstore@caisafety.com

These application and system specific forms are highly customized to help you provide system specific information about your fall protection requirements.

REQUEST QUOTE