Sale!

Roof Non-penetrating Hatch Guard

CAI Safety’s Roof Non-penetrating Hatch Guard protects against falls through a open roof hatch on flat roofs. Our OSHA compliant non-penetrating Roof Hatch Guards do not require roof curbs or hatch penetrations for install. The Hatch Guard finish is Powdercoat Safety Yellow and Galvanized.

PLEASE NOTE: If your hatch dimensions are not listed below, please call or contact us and we can provide you with custom sizes, finish, and pricingย as per your specification.
SKU: SRC-RHG Category: Tag:

System Description

Roof Hatch Guard DimensionsCAI Safetyโ€™s Roof Non-penetrating Hatch Guard protects against falls through an open roof hatch on flat roofs. Our OSHA compliant non-penetrating Roof Hatch Guards do not require roof curbs or hatch penetrations for install. The Hatch Guard finish is Powdercoat Safety Yellow and Galvanized.

The hatch system is your first line of defense against a fall through a roof hatch on flat roofs. Roof hatch openings on flat commercial roofs are an important feature in building design.

When access to the roof is needed, roof hatch openings are often more convenient than portable or fixed ladders placed on the outside of buildings.

To order Custom Sizes or in Galvanized finish, please call us or contact us

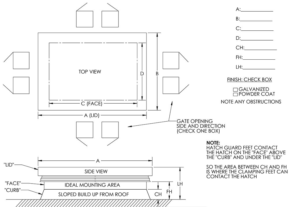
TIP: See the ‘Measuring a Hatch Guard’ tab for drawing and dimension reference.

Roof hatches that are left open for access or ventilation pose a major fall hazard to personnel. The problem is so serious that OSHA requires that all unprotected holes are to be guarded by fall protection systems. The other major source of personnel injury is when climbing out on into the hatches and to address that challenge our Roof Hatch Guards provide a safe work zone and grab bars.

Our Roof Hatch Guard comes standard with a 2 feet safe landing zone to allow the user to climb out of the hatch, gain their footing and then open the safety gate. All our Hatch Guards are equipped with grab bars to provide the worker a proper gripping means for climbing out or in to the hatch.

Features & Benefits:

  • Non-Penetrating design eliminates holes in roof or hatch
  • OSHA compliant fall protection
  • Simple design means quick install, low cost
  • Custom made to your size roof hatch
  • Powdercoat Safety Yellow and Galvanized finish
  • No drilling into hatch or roof
  • Self-closing gate included
  • 24โ€ safe landing zone
  • Built-in grab bars
  • Meets OSHA-compliant fall protection per 29 CFR 1910.29, 29 CFR 1926.501(b) (4) and 29 CFR 1926.502

**CAUTION WARNING** This is a fall protection system. The system must be used in strict conformance with the manufacturer’s instructions. Failure to do so may result in serious injury or death. You can download the system manuals from the ‘Downloads’ tab. You are also encouraged to contact us in case of any questions.

Measuring a Hatch Guard

Measuring a Hatch Guard Roof Hatch Guard Dimensions

Models

If your hatch dimensions are not listed below, pleaseย call usย orย contact usย and we can provide you withย custom sizes, finish, and pricing as per your specification. Custom sizes have a longer lead time than stock sizes.

Item # (SKU) System Type System Finish Hatch Dimensions (W x L) Weight (lbs.)
SRC-401018 4-Piece Modular Unit Powdercoat Safety Yellow 36″ x 42″ with 36″ Gate 140
SRC-401020 4-Piece Modular Unit Powdercoat Safety Yellow 36″ x 58″ with 36″ Gate 146
SRC-401056 4-Piece Modular Unit Powdercoat Safety Yellow 36″ x 76″ with 36″ Gate 160
SRC-401038 4-Piece Modular Unit Powdercoat Safety Yellow 42″ x 42″ with 42″ Gate 155
SRC-401206 4-Piece Modular Unit Powdercoat Safety Yellow 48″ x 48″ with 48″ Gate 160
SRC-401022 4-Piece Modular Unit Powdercoat Safety Yellow 36″ x 100″ with 36″ Gate 209
SRC-401019 4-Piece Modular Unit Galvanized 36″ x 42″ with 36″ Gate 140
SRC-401021 4-Piece Modular Unit Galvanized 36″ x 58″ with 36″ Gate 146
SRC-401057 4-Piece Modular Unit Galvanized 36″ x 76″ with 36″ Gate 160
SRC-401039 4-Piece Modular Unit Galvanized 42″ x 42″ with 42″ Gate 155
SRC-401207 4-Piece Modular Unit Galvanized 48″ x 48″ with 48″ Gate 160
SRC-401023 4-Piece Modular Unit Galvanized 36″ x 100″ with 36″ Gate 209

Downloads

Request a Quote

By providing some basic information, we can provide you with a custom quotation or more product information.
If you prefer to speak with a fall protection expert just call us at (951) 465-7386 x 303 or email us at webstore@caisafety.com

These application and system specific forms are highly customized to help you provide system specific information about your fall protection requirements.

REQUEST QUOTE