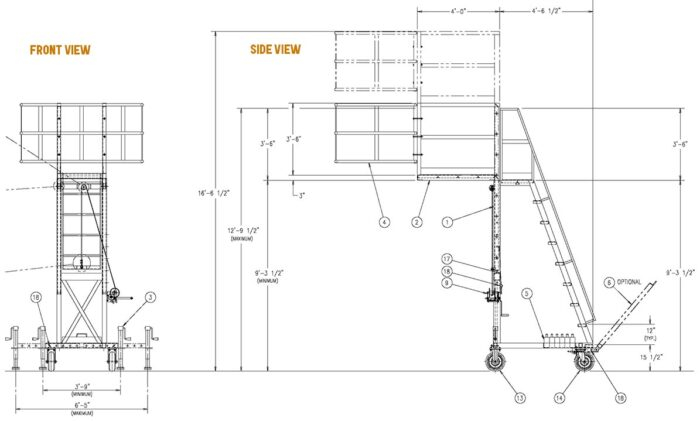
The Portable Access Platform is designed to provide safe access and fall protection on the top of tanker trucks, bulk trucks, and railcars. The unit provides portable access with a safety enclosure designed for applications that do not allow the ability to use permanent truck loading platforms or when space is limited.
Features & Benefits:
MATERIALS OF CONSTRUCTION
Rugged construction includes:
- Welded steel frame with aluminum safety cages
- (2) 8โณ swivel casters with brakes
- (2) 8โณ fixed direction casters
FINISHES
- Hot Dip Galvanized (standard finish)
- Painted Standard Grey Enamel (please contact us for painted option)
SELF-SUPPORTING DESIGN
- Counterweighted design allows access without being supported by the vehicle.
- Rated to 500 lbs.
SAFETY CAGES
- Standard Tank Trucks and Railcar designs available
- Custom designed safety cages to meet your specific application
FORKLIFT POCKETS
- Forklift pockets are used to transport the platform with the help of a forklift. These pockets fit onto the system when relocating the platform.
































