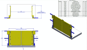
The Pallet Self-Closing Mezzanine Safety Gate is the answer for your elevated material platforms and mezzanines. The gate closes up against your material effectively protecting the mezzanine edge until the material is off loaded or the pallet is removed from the opening. Then the gates spring closed, all the time protecting the opening. Toeboards are also included with every gate order.
Features & Benefits:
IMPROVES EFFICIENCY
Self-closing so you can forklift your materials to the mezzanine and simply back away.
HELPS KEEP EMPLOYEES SAFE
Acts as a safety railing when not in use to protect crew members from mezzanine falls.
SELF-CLOSING
Two paired gates will self-close as soon as product is pushed through and act as a safety railing. The gates are designed to swing in one direction (inward).
USER-FRIENDLY
The forklift operator can just push product through the gate without needing an additional person at the mezzanine level to operate the gate.
SAFETY
Besides exceeding OSHA safety requirements the Pallet self-closing safety gate has features such as toe boards, gates only open inwards to provide a safe means for you to receive product on your mezzanine.
OSHA STANDARDS
Designed to comply and meet OSHA 1910.29(b) and ANSI A1264.1-2017 requirements for loading and dimension.

























